4-pokoje
Przestronne apartamenty zaprojektowane z myślą o wygodzie całej rodziny. Optymalny układ pomieszczeń zapewnia komfort i swobodę aranżacji.
parter z ogródkiem
Wybierz widok z tarasu lub prywatną przestrzeń zieloną tuż za progiem. Każde mieszkanie oferuje wyjątkowe miejsce do relaksu i spędzania czasu na świeżym powietrzu.
gotowe do odbioru
Nowoczesne wykończenie, inteligentne rozwiązania i materiały najwyższej jakości. Wszystko po to, abyś mógł wprowadzić się od razu i cieszyć komfortem bez kompromisów.
Nowoczesne wykończenie, inteligentne rozwiązania i materiały najwyższej jakości.
dwa układy do wyboru
BO zawsze wybierzesz dobrze! Tu znajdziesz przestrzeń najlepiej dopasowaną do swojego stylu życia: parter z zielonym ogródkiem albo piętro z tarasem. Oba warianty to przemyślane układy i duże przeszklenia, a światło i zieleń za oknem sprawiają, że od pierwszej


1 187 463.00 zł

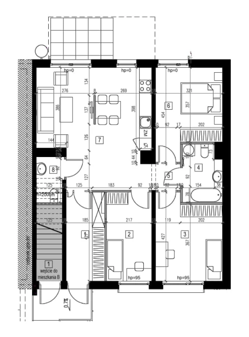
parter z ogródkiem
Chcesz własnej zieleni bez koszenia wielkiego ogrodu Parter z ogródkiem w BO to komfort bez nadmiaru obowiązków. Funkcjonalne 4 pokoje zaaranżujesz po swojemu: sypialnia, pokój gościnny, gabinet. Prywatny, garaż podziemny na dwa auta (43 m²) oraz komórka lokatorska porządkują przestrzeń.
- 82.63 m2
- 4 pokoje
- idealny dla rodzin
- przemyślana przestrzeń
- taras i ogród



1 158 417.00 zł

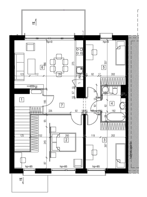
piętro z tarasem
Pracujesz zdalnie? Urządzisz dwa gabinety albo bibliotekę i studio — w BO masz pełną swobodę aranżacji. Dwa auta, motor, rowery, narty? Garaż na dwa auta z pomieszczeniem gospodarczym domyka temat przechowywania.
- 80 m2
- 4 pokoje
- idealny dla rodzin
- przemyślana przestrzeń
- balkon i taras

BO blisko miasta i natury
Przystanek tramwajowy tuż obok, 15 minut do serca miasta, a po powrocie cisza, zieleń i kameralny klimat.
BO komfort ma znaczenie
Standard premium: Smart home, ogrzewanie podłogowe, pompa ciepła i fotowoltaika — codzienna wygoda i przewidywalne rachunki.
Na osiedlu: kameralne strefy relaksu i paczkomat dla mieszkańców.
BO to inwestycja na lata
BO to wysoka jakość wykonania, energooszczędne technologie, fotowoltaika.
Dopracowana architektura i detale, które cieszą oko dziś i za kilka lat.
BO tu czujesz się bezpiecznie
Mała wspólnota, sąsiedzi, których znasz, bez anonimowości wielkich osiedli.
Przyjaźnie i bezpiecznie - monitorowane osiedle, drzwi antywłamaniowe.
BO lokalizacja ma znaczenie
Osiedle BO przy ul. Bocianiej na Kowalach łączy wygodny dostęp do miasta z bliskością natury.
W bezpośrednim sąsiedztwie znajduje się przystanek tramwajowy „Bociania”, skąd linie 23 i 24 zapewniają szybkie połączenia z centrum i węzłami przesiadkowymi: Dworcem Głównym, Galerią Dominikańską, Kromera, a także Popowicami, Pilczycami i Nowym Dworem.
W zasięgu krótkiego spaceru są sklepy, usługi, placówki oświatowe i medyczne. Dodatkowo tereny nad Odrą, parki, trasy rowerowe, korty tenisowe, baseny, siłownie czy kluby sportowe — to wszystko w odległości około 15-minutowej przejażdżki rowerowej.
- Centrum Handlowe Korona4 min
- Park Szczytnicki14 min
- Plac Grunwaldzki7 min







